Please enter a keyword to search
In this Code, unless the context otherwise requires, the following definitions will apply.
1.4.1 Accessible Floor Area (AFA)
“Accessible floor area” refers to the total floor area of all covered spaces within a building, including service ducts, lift shafts, toilets, staircases, areas occupied by fixed/ moveable furniture/ equipment/ facilities, and any open-to-sky habitable areas above or below the first storey of the building.
1.4.2 Air well
“Air well” refers to a space(s) enclosed substantially by building(s) and directly open to the sky. An air well can be considered as an external space if it meets the minimum clear width and length below:
| TABLE 1.4.2 - AIR WELL SIZE | |
| Max. Habitable Height of Building | Min. Clear Width and Length of Air Well |
| 18m | 10m |
| 24m | 11m |
| 36m | 12m |
| 48m | 13m |
| 60m and above | 14m |
1.4.3 Ambulatory care facility
"Ambulatory care facility” is a building, or part thereof, used for providing services on an out-patient basis for treatment for patients which would render them incapable of taking action for self-preservation or safety under emergency conditions without assistance from others, such as haemodialysis units or surgical treatment requiring general anaesthesia. Such facilities shall include the followings:
a. Renal dialysis day centres;
b. Aesthetic clinics;
c. Non-mental rehabilitation day centres; and
d. Endoscopy clinics.
1.4.4 Ancillary office
“Ancillary office” refers to any office which supports the activities of a building within Purpose Groups III, V, VI, VII and VIII and which is located within the same building or compartment as the purpose group it serves.
1.4.5 Ancillary usage
“Ancillary usage” refers to a room/ space that serves a supporting function, and which belongs to the same purpose group as the primary building. Such rooms include sick/ first aid rooms, reception lobbies/ areas, waiting areas, staff lounges/ staff recreation rooms, staff changing/ locker rooms, staff training rooms, meeting rooms, workshops, laboratories (no open-flame), store rooms, material/ product holding areas, packing distribution areas within factories/ warehouse buildings, etc.
1.4.6 Anteroom
“Anteroom” refers to the room leading into the BSL-3 or BSL-4 containment laboratory, used for showering and changing. It is also serves as a containment facility for controlling air flow and providing additional physical containment between the laboratory and adjoining spaces.
1.4.7 Approved
“Approved” refers to being approved by the SCDF.
1.4.8 Area of compartment/ room/ space
“Area of compartment/ room/ space” refers to the total area of any compartment/ room/ space bounded by the inner finished surfaces of the walls that form the compartment/ room/ space. Where there is no enclosing wall on any one side, the area of the compartment/ room/ space shall be measured by the outermost edge of the floor on that side.
1.4.9 Area of refuge
“Area of refuge” refers to an area within a building, or in an adjoining building, where evacuees can temporarily take refuge, in lieu of the requirement for adequate exit staircase provision. It shall be adequately separated from the rest of the building or adjoining building by fire-resisting construction, and connected via an external corridor or open-sided linkway. The area of refuge shall be always accessible.
1.4.10 Area of roof
“Area of roof” refers to the visible roof area on a plane parallel to the pitch of the roof.
1.4.11 Area of storey
“Area of storey” refers to the total area of that storey bounded by the inner finished surfaces of the enclosing walls. Where there is no enclosing wall on any one side, the area of storey shall be measured by the outermost edge of the floor on that side.
1.4.12 Assembly occupancy
“Assembly occupancy” refers to buildings or portions of buildings used for gathering of more than 50 persons for such purpose as deliberation, worship, entertainment, eating, drinking, amusement or awaiting transportation.
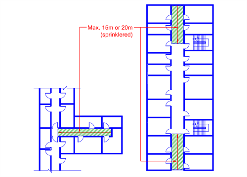
1.4.13 Atrium
“Atrium” refers to a large open space within a building created by an opening, or a series of openings, in floor assemblies, thus connecting two or more storeys. An atrium is covered at the top and is used for purposes other than those associated with small shafts, e.g., stairs, elevators and various services. The sides of the atrium can be open to all floors, to some floors or closed to all floors by non-rated or rated fire-resistant construction.
1.4.14 Authority having jurisdiction
“Authority having jurisdiction” refers to non-SCDF local entities, which may include an organisation, office, or individual responsible for enforcing the requirement of a code or standard, or for approving equipment, materials, an installation, or a procedure.
1.4.15 Basement storey
“Basement storey” refers to a storey of a building for which at least half the storey height is below the ground level, and which also adjoins its perimeter walls for at least half the length of such walls.
1.4.16 Biological Agent
“Biological Agent” refers to the biological agents stipulated in the First Schedule, Second Schedule and Third Schedule of the Biological Agents and Toxins Act.
1.4.17 Boundary
“Boundary” refers to the border demarcating the area surrounding a building, and where applicable (in determining the relevant boundary), it includes the imaginary extension of the border up to the centre of an abutting street, canal or river.
1.4.18 Capsule hotel
“Capsule hotel” refers to a type of hotel where the bed spaces are enclosed individually. Each bed space is considered as a capsule and not as a loose furniture or fitting. The capsule has the following characteristics:
a. access opening to the bed space can be fitted with doors, curtains or other materials or left open; and
b. the bed space is provided with its individual electricity supply for amenities such as lighting, power points, TV, and other amenities.
1.4.19 Cavity barrier
“Cavity barrier” refers to a fire-rated construction that seals or sub-divides a concealed space. The cavity barrier helps limit the spread of smoke and fire into or within that concealed space.
1.4.20 Ceiling
“Ceiling” refers to a part of a building that encloses and is exposed overhead in a room, circulation space or protected shaft. A soffit or rooflight is regarded as part of its surface, but not the frame of a rooflight.
1.4.21 Circulation space
“Circulation space” refers to the means of access between a room or protected shaft and an exit from the building or compartment. It does not include areas used for any commercial activity, such as information and reception counters, or areas used for exhibitions.
1.4.22 Code of Practice (CoP)
“Code of Practice” refers to the standard of practice acceptable to the authority having jurisdiction. The SCDF may adopt requirements stipulated in the stated year of publication of any referenced Code of Practice, or at its discretion adopt those specified in a later version.
1.4.23 Coldroom
“Coldroom” refers to a room, normally constructed of combustible insulation materials, used for the storage, processing or temporary holding of materials under cold conditions. If the floor area of cold storage space does not exceed 10m2 and its design does not permit persons to walk in, it shall be treated as an appliance and not a coldroom.
1.4.24 Compartment
“Compartment” refers to a part of a building separated from all other parts of the same building by compartment walls and/ or compartment floors. The roof space above the top storey of a compartment is regarded as part of that compartment.
1.4.25 Compartment wall & Compartment floor
“Compartment wall” and “Compartment floor” refer to walls or floors of fire-rated construction provided for the purpose of dividing a building into compartments.
1.4.26 Composite panel
“Composite panel” refers to non-homogenous panel consisting of more than one layer of different materials used for partition, finishes to ceiling/ internal wall/ external walls/ roof covering, etc.
1.4.27 Concealed space/ Cavity
“Concealed space/ Cavity” refers to a space enclosed by elements of a building (including a suspended ceiling or raised floor) or contained within an element. It is not a room, cupboard, circulation space, protected shaft or space within a flue, chute, duct, pipe or conduit.
1.4.28 Corridor
“Corridor” refers to a passage providing means of access from rooms or spaces to an exit.
1.4.29 Cross ventilated corridor/ lobby
“Cross-ventilated corridor/ lobby” refers to a corridor/ lobby with fixed and unobstructed ventilation openings located on opposite facing walls, which face the external space, to allow for air circulation caused by outside breezes or wind.
1.4.30 Cubical extent
“Cubical extent” refers to the volume of a space within a building or compartment. This excludes protected lift walls, exit staircases and other accommodation (such as restrooms and locker rooms) which are enclosed with walls having at least 1-hr fire resistance, and openings protected by doors of ½-hr fire resistance fitted with an automatic self-closing device. It shall be measured according to the following dimensions:
a. the inner finished surfaces of the enclosing walls or, on any side where there is no enclosing wall, a plane extending vertically above the outermost edge of the floor on that side,
b. the upper surface of its lowest floor; and
c. where a building or compartment extends to a roof, the under-surface of the roof or the under-surface of the ceiling of the highest storey within the compartment, including the space occupied by any other wall, or any unprotected shafts, ducts or structure within the space to be so measured.
1.4.31 Custodian care facility
“Custodian-care facility” is a building or part thereof, without stay in accommodation, used by persons who, because of age, or physical or mental disabilities, are unable to care for their self-preservation and safety. Such facilities include the followings:
a. Nurseries for children under 6 years of age (e.g., kindergarten, childcare day centres, infant care day centres, etc.;
b. Senior care day centres;
c. Mentally disabled day care centres;
d. Intellectually disabled day care centres;
e. Mental rehabilitation day care centres; and
f. Psychiatric day care centres.
1.4.32 Dead-end
“Dead-end” refers to a situation within a common area, such as a corridor or lift lobby space, where exit is only possible from one end, with no possible escape from the other end.
1.4.33 Direct distance
“Direct distance” refers to the shortest distance from the most remote point in a room or space, measured within the external enclosures of the room or space to the relevant exits, ignoring internal walls, partitions and fittings other than the enclosure walls of exit passageways and exit staircases.
1.4.34 Door
“Door” refers to any shutter, cover or other form of protection to an opening in any wall, floor or in the structure surrounding a protected shaft, regardless of whether the door is constructed of one or more leaves.
1.4.35 Electromagnetic or electromechanical door-holding device
“Electromagnetic” or “electromechanical door-holding device” refers to a device which holds doors open. This device is designed to automatically close doors in the event of a fire, thereby helping to contain the spread of smoke and fire. Events which cause these devices to trigger include the detection of smoke, failure of power supply to the door, the triggering of a fire alarm, and manual triggering.
1.4.36 Electromagnetic or electromechanical locking device
“Electromagnetic” or “electromechanical locking device” refers to a fail-safe device which provides egress access control. In the event of a fire alarm activation, failure of building power supply, and/ or any fault in the locking devices/ components, related to the release of locking mechanism, this device shall:
a. automatically unlock doors immediately to facilitate egress, and remain so until power supply is restored; and
b. be provided with a means of manual override located within the occupied space, 1.2m above the floor and within 1.5m of the door jamb.
1.4.37 Element of structure
“Element of structure” refers to:
a. a member forming part of the structural frame of a building or any other beam or column but not a member forming part of a roof structure only,
b. a load-bearing wall or load-bearing part of a wall,
c. a floor, including a compartment floor, other than the lowest floor (in contact with the ground) of a building,
d. a separating wall, or
e. a structure enclosing a protected shaft (protecting structure).
1.4.38 Emergency generator
“Emergency generator” refers to emergency power-generating equipment that complies with the requirements stipulated in SS 535.
1.4.39 Emergency lighting
“Emergency lighting” refers to lighting provided with a secondary source of power supply to illuminate the exits and spaces within a building.
1.4.40 Engineered timber
“Engineered timber” refers to mass timber products that are manufactured according to established standards accepted by the SCDF. Examples of mass timber products are Cross Laminated Timber (CLT) and Glued Laminated Timber (GLT) structural elements manufactured in accordance with EN 16351 and EN 14080, respectively.
1.4.41 Evacuee holding area
“Evacuee holding area” refers to a designated circulation area/ space on the refuge floor for temporary assembly of occupants during a fire emergency.
1.4.42 Exit
“Exit” refers to a means of egress from the interior of the building to an external space. An exit includes any of the following, either singly or in combination: a door opening leading to external space, exit staircase, exit ramp and/ or exit passageway, but not including an access stair, aisle, corridor door or corridor and an access door to a room or space.
1.4.43 Exit access
“Exit access” refers to the portion of a means of escape that leads to an exit. It includes the room and building spaces that people occupy, as well as the doors along the escape routes, lobbies, aisles, passageways, corridors, access stairs and ramps traversed in order to reach an exit.
1.4.44 Exit access door
“Exit access door” refers to a door which provides access to a room or space (excluding a toilet cubicle, bedroom, storeroom, utility room, pantry and the like), or installed across the escape path leading to an exit.
1.4.45 Exit door
“Exit door” refers to a door, including a door which opens to the external space, provided at the doorway of an exit for the passage of people, which forms part of the integrity of the exit.
1.4.46 Exit passageway
“Exit passageway” refers to the horizontal extension of a vertical exit via an exit staircase or passage leading from a habitable area to an external space.
1.4.47 Exit staircase
“Exit staircase” refers to a staircase constructed of non-combustible material and protected from fire (by fire-rated construction or located at the external space) for the purpose of enabling egress to the external space.
1.4.48 External corridor
“External corridor” refers to a corridor with an unobstructed and uninterrupted ventilation opening that measures at least 1.2m in vertical height, the latter which is located above its parapet wall.
1.4.49 External exit passageway
“External exit passageway” refers to an exit passageway that serves as required exit with at least one of its longest sides open to the external space or air well.
1.4.50 External exit staircase
“External exit staircase” refers to an exit staircase located outside a building, open to the external space, and that:
a. is enclosed by parapet walls or railing of not more than 1.1m in height;
b. has at least two adjacent sides or one of its longest sides abutting the external space; and
c. is recessed not more than 3m from the building facade.
1.4.51 External space
“External space” refers to an open space abutting the perimeter of a building, which includes an air well and which is vertically open to the sky without any roof or trellis.
1.4.52 External wall (or side of a building)
“External wall” or “external side of a building” refers to an outer wall or vertical enclosure. This includes a part of the roof pitched at an angle of 70º or more to the horizontal, if that part of the roof adjoins a space within the building to which persons have access.
1.4.53 External wall finishes
“External wall finishes” refers to materials/ components installed on the building facade for the purpose of providing thermal insulation, weather resistance and/ or to improve the appearance of buildings. They can be made of timber, metal, brick/stone granite, vinyl, composite materials, etc. It shall include cladding, fins and any decorative features mounted on the external walls of a building.
1.4.54 Fire lift lobby
“Fire lift lobby” refers to a protected and ventilated lobby into which a fire lift opens, and from which direct access to an exit staircase can be made for the purpose of firefighting.
1.4.55 Fire resistance
“Fire resistance” refers to the minimum period of time during which an element of structure or building element can be expected to function satisfactorily while subjected to a standard fire test.
1.4.56 Fire safety report
“Fire safety report” refers to a document that details the provision of fire protection systems, life safety features and fire safety management for a building, plant or installation.
1.4.57 Fire stop
“Fire stop” refers to a seal provided to close an imperfection of fit or any joint between elements, components or construction in a building, which serves to prevent/ limit the passage of smoke and flame through that imperfection or joint.
1.4.58 Flammable refrigerant
“Flammable refrigerant” refers to the group of refrigerants with flammability classification of group 2 or 3 in accordance to ISO 5149. For refrigerant blends which have more than one flammability classification, the most unfavourable classification shall be taken for the purpose of this definition. Most of these flammable refrigerants are hydrocarbon (HC) based. Some examples of HC refrigerant include propane, butane and isobutane.
1.4.59 Flexible joints and Flexible connections
For air-conditioning and mechanical ventilation systems:
a. “flexible joints” refer to connections between ducts and equipment normally provided to isolate vibration and to allow thermal movement; and
b. “flexible connections” refer to flexible sections of ducts provided to connect the extremity of ventilation ductwork to terminal units, extract units and grilles.
1.4.60 Fire engine access road
“Fire engine access road” refers to a road designed for firefighting appliances gain access to, and travel within a development for firefighting operations.
1.4.61 Fire engine accessway
“Fire engine accessway” refers to a metalled or paved road located along the perimeter of a building to allow a firefighting appliance to carry out firefighting operations. Compared to a fire engine access road, a fire engine accessway is designed to withstand a higher tonnage, and with a larger width, for the purpose of deploying firefighting appliances during an operation.
1.4.62 Fully Automated Mechanised Car Park (FAMCP)
“Fully automated mechanised car park” refers to a building or part of a building that is intended for the storage/ parking of passenger vehicles employing fully automated mechanical facilities to move the vehicle from the point of entry to the parking deck and vice-visa. The parking area would be accessible by trained staff when carrying out maintenance works only. The automatic parking system is to be deactivated during the maintenance operations.
1.4.63 General warehouse
“General warehouse” refers to a building or space used for storing various types of goods or materials. It includes warehouses for storing chemicals, fresh/ perishable food products (coldroom), etc. Store having floor area more than 100m2 shall be classified as warehouse.
1.4.64 Habitable floor
“Habitable floor” refers to all floors in a building, including the roof level. The roof level can be taken as non-habitable if it is not used for any purpose/ activity other than housing M&E plants/ equipment, e.g. lift motors, fire pumps, generators, fire hose reel pumps, water supply pumps, water tanks, cooling towers, solar photovoltaic panels, supply/ exhaust fans with associated ductwork, air-con condensing units, telecommunication equipment, satellite dishes, public warning sirens, green roofs inaccessible to public and for maintenance access only, etc
1.4.65 Habitable height
“Habitable height” refers to the height measured from the level of fire engine accessways or fire engine access roads, whichever is the lowest, to the finished floor level of the highest habitable floor.
1.4.66 Height of building
“Height of building” refers to the vertical distance measured from the average level of the ground adjoining the outside of the external walls of the building to the level of half the vertical height of the roof of the building or part, or the top of the walls or of the parapet (if any), whichever is higher.
1.4.67 High containment facility
“High containment facility” refers to containment laboratory, including the interstitial space, waste treatment area, anteroom, etc.) of Bio-safety Level 3 [BSL-3] and maximum containment laboratory of Bio-safety Level 4 [BSL-4] as defined in the WHO Laboratory Bio-Safety Manual. They are designed to comply with the requirements of WHO and authorities having jurisdiction for storing or handling of biological agents.
1.4.68 High hazard occupancy
“High hazard occupancy” refers to any occupancy in which the contents or activities include one or more of the following:
a. materials with auto-ignition temperature lower than 200ºC, or
b. materials that produce poisonous, noxious fumes, or flammable vapour, or
c. materials that cause explosions, or
d. high hazard occupancies stipulated under SS CP 52, or
e. highly combustible substances and/ or flammable liquids.
1.4.69 Hospital
“Hospital” is a building used for medical and surgical care and shall include healthcare facilities with 24-hr or inpatient services, such buildings include the following:
a. General hospitals;
b. Psychiatric hospitals (Institute of Mental Health)
c. Children/ Women hospitals; and
d. Community hospitals.
1.4.70 Load-bearing wall
“Load-bearing wall” refers to a wall which supports any load in addition to its own weight.
1.4.71 Masonry
“Masonry” refers to brick or concrete construction.
1.4.72 Mechanical ventilation
“Mechanical ventilation” refers to any system that uses mechanical means such as ventilation fan, to introduce outdoor air to a space when natural ventilation mode cannot be achieved during normal and fire emergency situations. This includes supply ventilation, exhaust ventilation, pressurisation, smoke purging, mechanical engineered smoke control systems, balanced systems that consist of both supply and exhaust ventilations, etc.
1.4.73 Non-combustible material
“Non-combustible material” refers to any material which neither burns nor gives off flammable vapour in sufficient quantity to ignite when subjected to the test for combustibility prescribed in BS 476 Part 4, and includes materials of limited combustibility, such as:
a. any material of density 300kg/m3 or more, which when tested in accordance with BS 476: Part 11, does not flame, and the rise in temperature on the furnace thermocouple is not more than 20°C;
b. any material with a non-combustible core at least 8mm thick having combustible facings (on one or both sides) not more than 0.5mm thick; and
c. any material of density less than 300kg/m3, which when tested in accordance with BS 476: Part 11,
(1) does not flame for more than 10 sec;
(2) the rise in temperature on the centre (specimen) thermocouple is not more than 35°C; and
(3) the rise in temperature on the furnace thermocouple is not more than 25°C.
1.4.74 Non-load-bearing wall
“Non-load-bearing wall” refers to a wall which supports no load other than its own weight.
1.4.75 Notional boundary
“Notional boundary” refers to an imaginary boundary which exists at equal distance between buildings on the same site, or the centre of the width of a public road/ drain/ sewer reserve, provided that the boundary is fronting the respective reserves.
1.4.76 Nursing care facility
"Nursing care facility" refers to a building, or part thereof, used for the housing and nursing care of persons on a 24-hr basis who, because of physical incapacity, may be unable to care for their own needs and safety without assistance of other persons. These facilities provide inpatient medical care and include the followings:
a. Nursing homes;
b. Convalescent homes; and
c. Hospice.
1.4.77 Occupant load
“Occupant load” of a building, or part thereof, refers to the total number of persons that can occupy such a building, or part thereof, at any one time. The “occupant load” shall be determined by:
a. multiplying the floor area(s) available for occupation with the appropriate areas per person as stated in Table 1.4B, unless prior approval is obtained from SCDF for any other occupancy load factors not stated in this table, or
b. the number of fixed seating, if applicable, for assembly occupancies.
1.4.78 One-way travel
“One-way travel” refers to a situation where occupants within a space can only travel in a single route/ direction, from the most remote point, to an exit or a splitting point to reach multiple exits.
1.4.79 Outdoor Display Area (ODA)
“Outdoor display area” refers to an area along the common walkways in front of their shops where the shop owner/ operator displays his merchandises. The area can be open- to-sky, covered or roofed-over with extended awning/ canopy.
1.4.80 Outdoor Refreshment Area (ORA)
“Outdoor refreshment area” refers to an area along the common walkways in front of their eating houses, restaurants, coffee shops, hawker centres, fast food outlets, cafeterias, canteens, pubs, bars and the like by their respective food & beverage outlet’s owner/ operator. The area can be open-to-sky, covered or roofed-over with umbrella or extended awning/ canopy.
1.4.81 Permitted limit of unprotected area
“Permitted limit of unprotected area” refers to the maximum aggregate area of unprotected areas in any side or external wall of a building or compartment
1.4.82 Plastic
“Plastic” refers to any group of organic materials which, though stable in use at ambient temperatures, are plastic at some stage in their manufacture and then can be shaped by the application of heat and/ or pressure. Plastics can be categorised as either thermoplastics or thermosetting plastics.

1.4.83 Pressurisation
“Pressurisation” refers to a mechanical ventilation system that introduce positive differential pressure to a space/ room to prevent smoke ingress during a fire emergency.
1.4.84 Private lift
“Private lift” refers to a passenger lift which is meant for the exclusive use of occupants in the building, and is located to open its door directly into private enclosed spaces. Vehicle lifts, home lifts and stair lifts are not considered private lifts.
1.4.85 Protected shaft
“Protected shaft” refers to an exit staircase, exit passageway, lift, chute, duct or other shaft which enables persons, things or air to pass from one compartment to another.
1.4.86 Protecting structure
“Protecting structure” refers to a wall, floor or other part of the building which encloses a protected shaft. The following are not considered protecting structure:
a. a wall which also forms part of an external wall, separating wall or compartment wall, or
b. a floor which is also a compartment floor or a floor laid directly on the ground, or
c. a roof.
1.4.87 Purpose Group (PG)
1.4.88 Refuge floor
“Refuge floor” refers to a floor adequately separated from the rest of the building by fire-resisting construction. It serves as an area where evacuees can temporarily take refuge for buildings with long vertical evacuation routes to the building’s external space.
1.4.89 Relevant boundary
“Relevant boundary” refers to the lot boundary in relation to a building’s external wall or compartment. For the purpose of unprotected openings setback calculation, it may also be the notional boundary.
1.4.90 Remoteness of exits
“Remoteness of exits” refers to exits which are remotely located from each other, arranged and constructed to minimise the possibility that more than one would be rendered unusable during a fire, or other emergency conditions.
1.4.91 Roof light
“Roof light” refers to any elements in a roof intended to admit daylight.
1.4.92 Room
“Room” refers to an enclosed space bounded by walls that is not an enclosed circulation space or protected shaft at most 750mm in depth.
1.4.93 Separated part (of a building)
“Separated part” refers to a form of compartmentation from another part of the same building by a compartment wall which runs full height of the part and is in one continuous plane.
1.4.94 Separating wall
“Separating wall” refers to a wall used to divide or portion adjoining buildings under different ownership.
1.4.95 Setback distance
“Setback distance” refers to the distance between a building and its relevant boundary, which is meant for the purpose of preventing fire spread between buildings/ properties.
1.4.96 Singapore Civil Defence Force (SCDF)
“Singapore Civil Defence Force” refers to the Commissioner of Singapore Civil Defence Force and includes officers authorised by him generally or specifically to exercise the powers, functions and duties conferred by the Fire Safety Act.
1.4.97 Single point emergency lighting
“Single point emergency lighting” refers to an emergency lighting system employing self-contained emergency luminaires
1.4.98 Smoke-check door
“Smoke-check door” refers to a door or set of doors placed in an internal corridor to restrict the spread of smoke by reducing draft.
1.4.99 Smoke-free lobby
“Smoke-free lobby” refers to a lobby located at the entrance of an exit staircase. It is designed to help prevent or minimise the entry of smoke into the staircase.
1.4.100 Storey
“Storey” refers to any floor or part thereof, including platforms, mezzanines, attic levels and M&E floors.
1.4.101 Super high-rise residential building
“Super high-rise residential building” refers to a residential building with more than 40 storeys/ levels.
1.4.102 Supervisory care facility
“Supervisory care facility” refers to a building or part thereof, used for the housing, on a 24-hr basis, of mental health patients, natal cares, aged and individuals under welfare cares, who may be capable of self-preservation but require supervision and are receiving therapy, training or other health-related care and for whom there may be security measures not under their control. Such facilities shall include the followings:
a. Homes for intellectually disabled;
b. Psychiatric rehabilitation homes;
c. Dementia homes;
d. Pre/ post natal care centres; and
e. Welfare homes.
1.4.103 Tenancy unit
“Tenancy unit” refers to an individual unit or subdivided unit within a building or a compartment, and which is managed by a different operator registered with the authority having jurisdiction.
1.4.104 Thermoplastics
“Thermoplastic” refers to a class of plastic materials that is capable of being repeatedly softened by heating and hardened by cooling. A material can be considered as thermoplastic if it is a synthetic polymeric material which has a softening point below 200°C when tested to BS EN ISO 306 Method A120 Plastics– Thermoplastic materials – Determination of Vicat softening temperature.
1.4.105 Thermosetting plastic
“Thermosetting plastic” refers to a class of plastic materials that will undergo a chemical reaction by the application of heat, pressure, catalysts, etc., leading to a relatively infusible, non-reversible state.
1.4.106 Toxin
“Toxin” refers to the toxins stipulated in the Fifth Schedule of the Biological Agents and Toxins Act.
1.4.107 Travel distance
“Travel distance” refers to the distance required to be traversed from the most remote point in any room or space to the edge of a door opening, directly to:
a. an exit staircase, or
b. an exit passageway, or
c. an open external space,
unless otherwise permitted under this Code as in the case of residential apartments, maisonettes and exits to areas of refuge.
1.4.108 Two-way travel
“Two-way travel” refers to a situation where occupants within a space have the choice of more than one route/direction from a splitting point to reach multiple exits.
1.4.109 Unmanned building
An “unmanned building” refers to a building which is not manned by operation or security personnel after office or operating hours.
1.4.110 Unprotected area
“Unprotected area”, in relation to a side or external wall of a building, refers to:
a. a window, door or other opening;
b. any part of the external wall which has less than the relevant fire resistance; and
c. any part of the external wall which has combustible material more than 1mm thick attached or applied to its external face, whether for finishes or any other purpose.
1.4.111 Ventilation openings
“Ventilation openings” refer to fixed natural ventilation openings located in external walls for any space, which shall be unobstructed at all times, and exclude windows or louvres that are openable or operable. The fixed louvres shall consist of a single bank of louvres with blade width not exceeding 150mm, with effective ventilation openings calculated based on the free area calculation stated below:

1.4.112 Vertical exit
“Vertical exit” refers to an exit staircase or exit ramp which serves as a required exit from one or more storeys above or below ground level.
1.4.113 Wall surface
“Wall surface”, in the context of internal surfaces, refers to the surface of glazing, and any part of the ceiling sloping at an angle of 70º or more to the horizontal. It does not include:
a. door frames and unglazed parts of doors, or
b. window frames and frames in which glazing is fitted, or
c. architraves, cover moulds, picture rails, skirtings and similar narrow members, or
d. fitted furniture.
1.4.114 Workers’ dormitories
“Workers’ dormitories” refers to buildings or spaces in buildings where group sleeping accommodation is provided for workers.
Updated 3 Sep 2025