Government officials will NEVER ask you to transfer money or disclose bank log-in details over a phone call. Call the 24/7 ScamShield Helpline at 1799 if you are unsure if something is a scam. For details, visit the ScamShield website.
The application for Registered Inspector (RI) is opened from 1 to 30 Nov 2025. Please visit https://www.scdf.gov.sg/fire-safety-services-listing/downloads/forms
Please be informed that Alexandra Fire Station and Jurong Fire Station will not be hosting the weekly Saturday Fire Station Open House on 15 November 2025. Please refer to the list of other Fire Stations that are available for visits.
Please be informed that Punggol Fire Station will not be hosting the weekly Saturday Fire Station Open House on 22 November 2025. Please refer to the list of other Fire Stations that are available for visits.

1

/

4

Search TRSS
Include in Search
Clear All

Please enter a keyword to search

2.12.1 General

a. The protection carcass shall be formed by external SS wall, floor slab of the bottom- most shelter compartment and the ceiling slab of the top-most shelter compartment. FIGURE 2.12.1(a) to 2.12.1(c).

b. In the case of NS interspersed within the S/C SS or scissor S/C SS tower, SS doors and vertical blast hatches shall be provided to the opening leadings to the following NS. Refer to Figure 2.12.1(d) to 2.12.1(h).

i. One NS immediately below the bottom-most SS.

ii. Two NS immediately above the top-most SS.

iii. NS between SS compartments.

c. All SS doors are to be kept opened permanently during peacetime. As such, a door holder shall be provided to hold the door in open position. Refer to FIGURE 2.12.2(l).

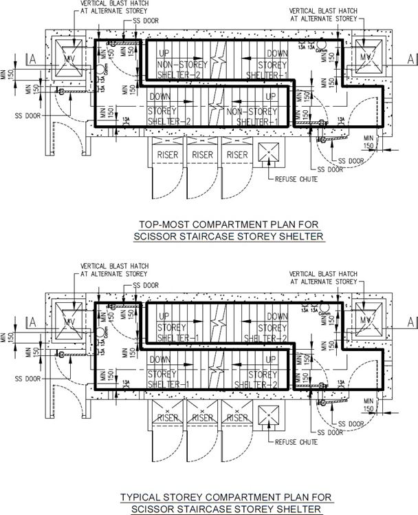
d. S/C SS and scissor S/C SS have to be mechanically ventilated for peacetime purpose. The number of mechanical ventilation (MV) openings is based on the peacetime MV design. Where there are MV openings, grille openings for entry of ventilating air via mechanical ventilation (MV) riser are permitted. Refer to Figure 2.12.2(c). Typically, for a scissor S/C SS, the MV openings are at alternate floors of each SS tower as shown in FIGURE 2.12.2(j) and 2.12.2(k).

e. No other openings shall be permitted in each S/C SS compartment except for the two ventilation sleeves, which are placed in closed position, and the required MV opening.

2.12.2 S/C SS Doors at Shelter Entrance

a. At every storey, one SS door with removable door kerb, is to be provided at the shelter entrance and shall be kept in the open position during peacetime. Refer to FIGURE 2.12.2(b), 2.12.2(d) to 2.12.2(k). A door holder shall be provided to hold the internal SS door in open position. Refer to FIGURE 2.12.2(l). As this SS door swing against the direction of exit travel, it shall be not doubled up as the peacetime fire-rated door.

b. Where the staircase leads to the roof level, an external SS door swinging outwards from the staircase, has to be provided at the staircase entrance. This external SS door shall also be permanently kept open during peacetime and shall be suitably protected from the weather if it is exposed to external space.

2.12.3 Internal S/C SS Wall and SS Door

a. Inside the S/C SS, there has to be a continuous reinforced concrete internal wall of minimum 200mm thickness running through the full height of the S/C SS tower. At every storey, one internal SS door swinging in the direction of exit travel, with removable door kerb, is to be provided either at the staircase entrance landing or at the intermediate landing. Refer to FIGURE 2.12.1(f), 2.12.2(b), 2.12.2(j) and 2.12.2(k). The SS door clear opening dimensions shall be:

i. Door opening width - 1000mm..

ii. Door opening height - 2055mm.

b. This SS door is to be kept permanently open during peacetime. A door holder shall be provided to hold the internal SS door in open position. Refer to FIGURE 2.12.2(l).

c. The RC wall and the internal SS door (when placed in closed position) serve to compartmentalise the staircase shaft into a series of staircase SS i.e. one SS compartment for each storey.

2.12.4 Shelter Compartment

a. S/C SS comprises one SS compartment each storey. Each shelter compartment shall be made up of one entrance SS door and 2 internal SS doors, i.e. one at each intermediate landing or main landing. Refer to FIGURE 2.12.1(f) and 2.12.2(b). For fire discharge level, refer to FIGURE 2.12.2(f) to 2.12.2(h).

b. Scissor S/C SS comprises two SS at each storey. Each SS compartment shall be made up of one entrance SS door and 2 internal SS doors. Refer to FIGURE 2.12.2(j) and 2.12.2(k). Signage shall be provided adjacent to each SS door entrance showing the designated dwelling units assigned to each shelter compartment.

c. The slopping soffit of the staircase waist shall be continuous to meet the staircase. This shall include the part of slopping soffit projected from the 200mm thick internal wall as shown in FIGURE 2.12.1(f) and 2.12.2(d).

2.12.5 Blast Hatch at MV Opening

a. There shall be a minimum 150mm reinforced concrete wall segment next to vertical edge of the blast hatch. Refer to FIGURE 2.5.3(c).

b. As the S/C SS and scissor S/C SS are to be mechanically ventilated, there would be vertical grille openings in S/C SS or scissor S/C SS wall. Where there are such openings (subject to the mechanical ventilation design), there shall be vertical blast hatch at the height of 1000mm-1200mm from the FFL, swung open into the MV riser, provided at these openings. Refer to FIGURE 2.12.2(c), 2.12.2(j) and 2.12.2(k). These openings shall be closed and made airtight by vertical blast hatches when the S/C SS or scissor S/C SS is converted for use as SS.

c. The MV walls serve as the shielding walls for the blast hatch and shall be minimum thickness of 200mm (with RC protective slab extended by at least ½ of storey height from the shielding wall) or 300mm (if the RC protective slab is extended by less than ½ of storey height). Refer to FIGURE 2.4.3(f).

2.12.6 Blast Hatch at MV Chamber

a. Horizontal blast hatch shall be provided at the MV chamber at roof level as shown in FIGURE 2.12.6(a) to 2.12.6(d).

b. Safety hook shall be provided in the protective wall next to the horizontal blast hatch opening at roof level as shown in FIGURE 2.12.6(a) to 2.12.6(d).

c. An unobstructed passageway shall be provided to the roof level for the operation and maintenance of the blast hatch in the MV chamber.

d. Ceiling light, switch, single power socket outlet and safety steel mess shall be provided in the MV chamber as shown in FIGURE 2.12.6(a) to 2.12.6(d).

2.12.7 Dimensions and Other Requirements of Blast Hatch

a. The minimum size of the vertical panel or MV grille for access to open/close the vertical blast hatch between the MV riser and staircase SS shall be 600/700mm by 700mm. The internal SS door shall be positioned such that it swings away from the vertical blast hatch opening. Refer to FIGURE 2.12.1(f) and 2.12.2(j).

b. There shall be reinforced concrete ledge or steel ledge provided around the MV duct for inspection and maintenance of the vertical blast hatch. Refer to FIGURE 2.12.1(f), 2.12.2(c) and 2.12.2(k).

c. The details of the nib dimensions for horizontal blast hatch opening at the MV chamber are as shown in FIGURE 2.12.6(a) to 2.12.6(d).

d. The net clear opening of the vertical and horizontal blast hatches shall be 600/700mm x 700mm as shown in FIGURE 2.12.7(a) and 2.12.7(b).

e. Unlocking” or “Locking” label or sticker to indicate the unlocking or locking position at the locking device shall be provided for all blast hatches. Refer to FIGURE 2.12.7(a) and 2.12.7(b).

2.12.8 Provision of cut-off Sprinkler outside S/C SS and Scissor S/C SS

Where cut-off sprinkler is required to be provided in the fire-protected space for the compliance to fire safety, the cut-off sprinkler compartment shall be provided outside the S/C SS. Refer to FIGURE 2.12.8.